
FZN21-12D/T630-20、ZFN21-12DR/T125-31.5型高压真空负荷开关及组合电器用于三相交流12kV、50Hz的配电系统中,具有结构紧凑、体积小、重量轻、寿命长、关合开断能力强、安全 可靠等优点,与熔断器配合使用(简称组合电器),可替代造价较高 的断路器,其操作和维护简单方便。
●型号含义

●使用环境条件
1.海拔高度≤1000m;
2.周围环境温度-25℃~+40℃;
3.相对湿度:曰平均值不大于95%,月平均值不大于90%
4.无导电性尘埃、腐蚀性气体和水蒸气的场所:
5.无火灾和爆炸危险的场所;
6.无剧烈霖动、倾斜度小于3°的场所。
●负荷开关的技术参数

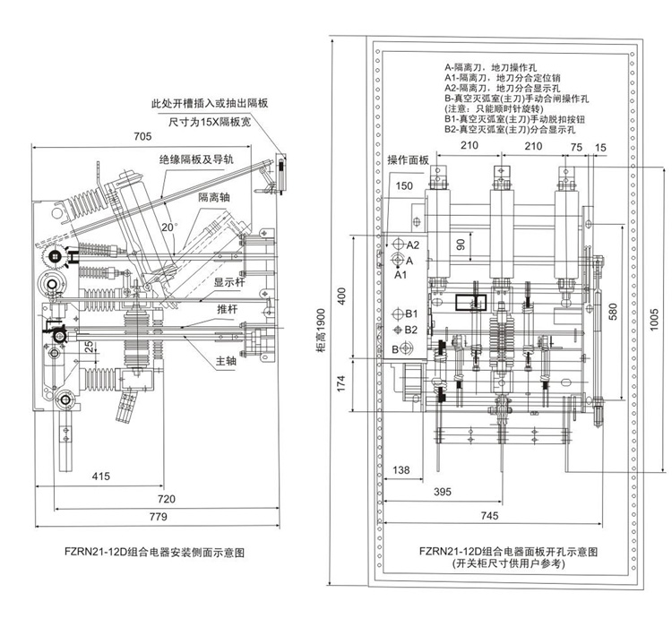
●结构特点、性能(及外形安装尺寸,见图)

