
ZN口(VS1)- 12型户内高压真空断路器, 系三相交流50Hz额定电压为12kV电力系统的户内开关设备,作为电网设备、工矿企业动力设备的保护和控制单元。适用于要求在额定工作电流下的频繁操作,或多次开断短路电流的场所。
该断路器采用操动机构与断路器本体一体式设计.即可作为固定安装单元.也可配有专用推进机构.组成手车单元作用。
● 型号含义

● 使用环境
a . 周围空气温度:上限+40℃ .下限-15℃ ;
b 海拔高度: ≤2000m(若需增高海拔, 则额定绝缘水平相应提高);
C . 振幅: 地震烈度不超过8度;
d 空气相对湿度日平均值不大于95% ,月平均值不大于90%;
e 无火灾、爆炸危险、严重污染、化学腐蚀及剧烈震动的场所。
● 主要技术和参数

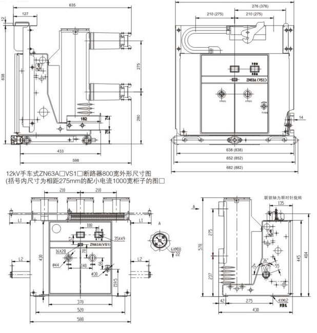
● 外形及安装尺寸图

