
JG-BZJ-100/220系列变压器中性点成套设备是按DL/T620-1997《交流电气装置的过电压保护及绝缘配合》中关于110kV/220kV有效接地电 力网中变压器中性点采用间隙保护的相关规定制造,并按照国家电网公司2005年6月出版的《十八项电网重大反事故措施中防止接地网和过电压事故的技术要求》进行设计。适用于110kV和220看V有效接地电力网中不接地变压器的中性点过电压保护。
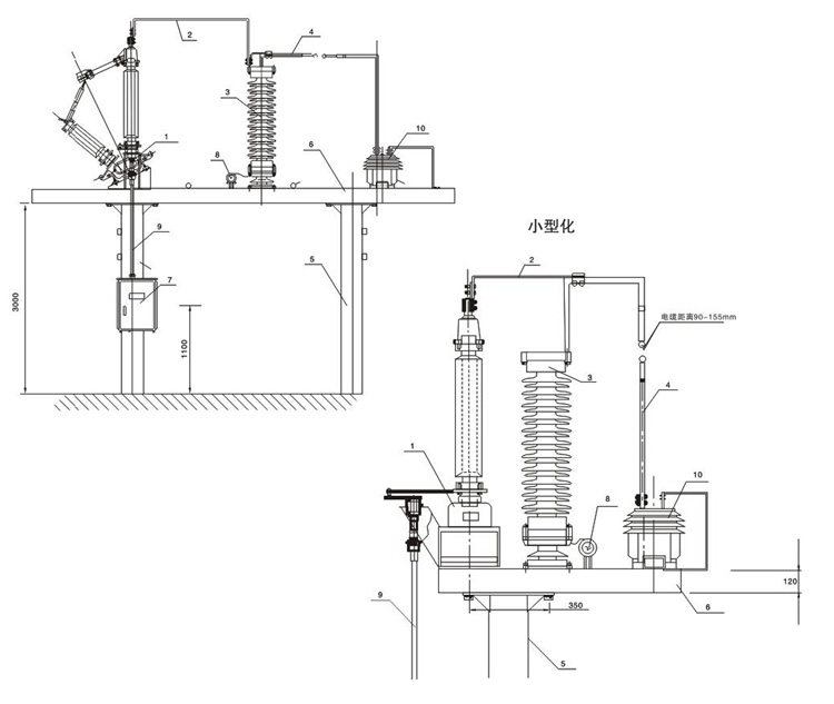
为使110kV、220kV变电站内的变压器中性点设备性能可靠、安装调试及操作方便、布置简介美观;陕西宝光高压开关制造有限公司还推出集变压器中性点棒间隙、间隙电流互感器、隔离开关、避雷器、端子箱及安装支架等电气设备于一体的变压器中性点成套设备。
用户可选用纯间陳的变压器中性点过电压保护方案,也可选用间隙与避雷器并联工作,协同保护的方案。避雷器与隔离开关可根据工程需要,灵活组配。隔离幵关的操动可选择手动或电动方式。所有产品的电气及机械性能均在出厂前完成全套的调试与检测,亦可方便的在使用现场进行再校正。
●外形结构


